Task
Design complete technology and its equipment of a wastepaper recycling factory.
Solution
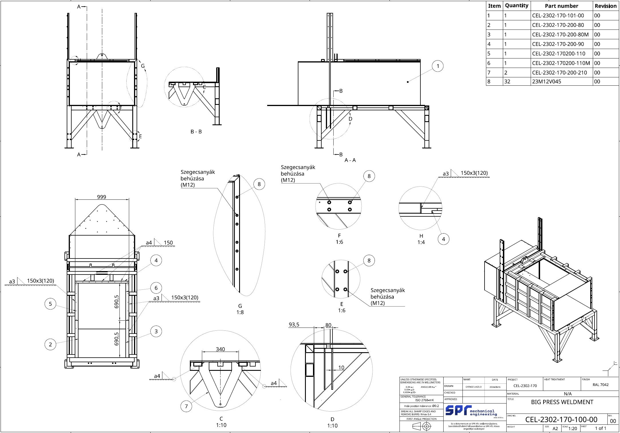
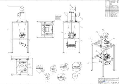
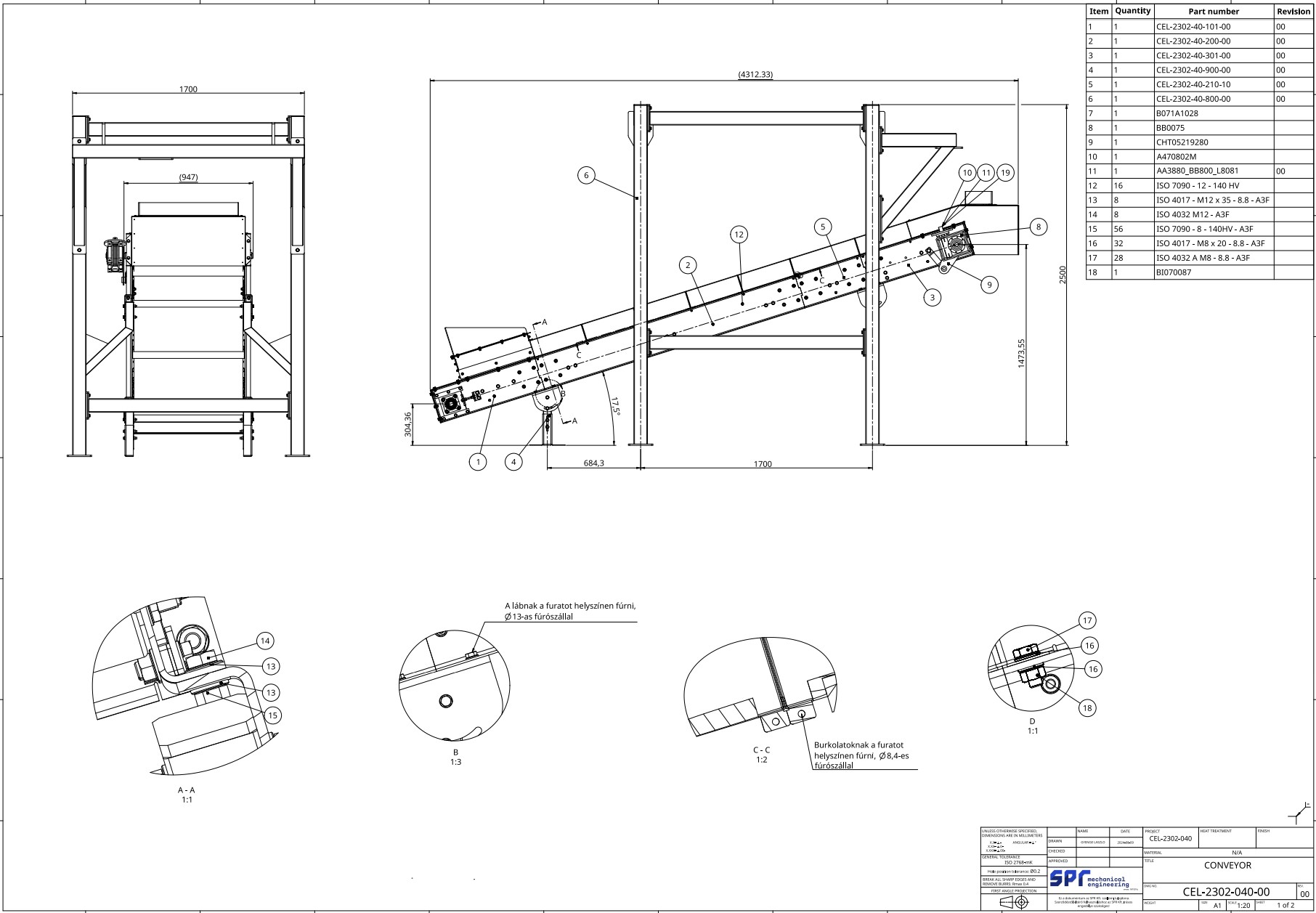
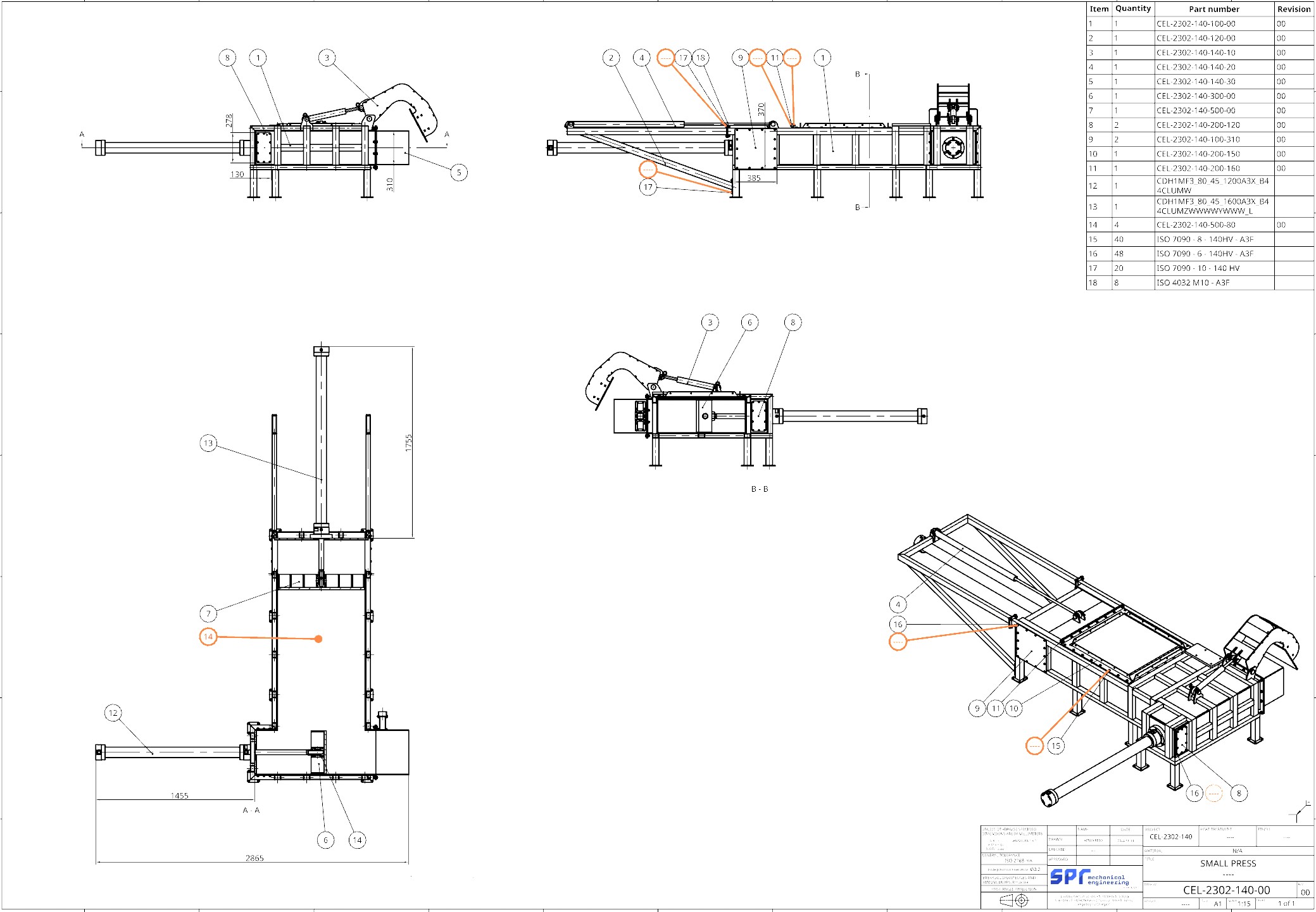
In cooperation with our Hungarian customer, we upscaled developed and tailored to unique demands the complete line. It took 3 engineers and 6 months to create the manufacturing documentation. In the second part of 2024 we started manufacturing non-outsourced components.
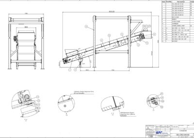
Project included:
- silo with discharging rakes
- shredder
- metal detector
- chemicalia dispensers
- hammer mill
- pneumatic conveying
- dust removal cyclone
- separator wheel
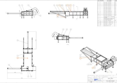
- scaling conveyors
- branching chutes
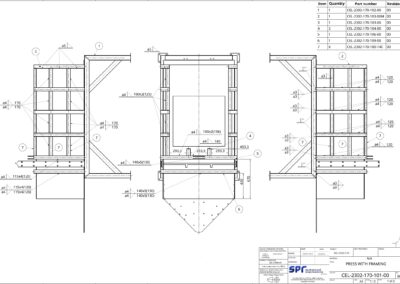
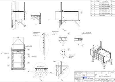
- presses
- foil wrapping machines
