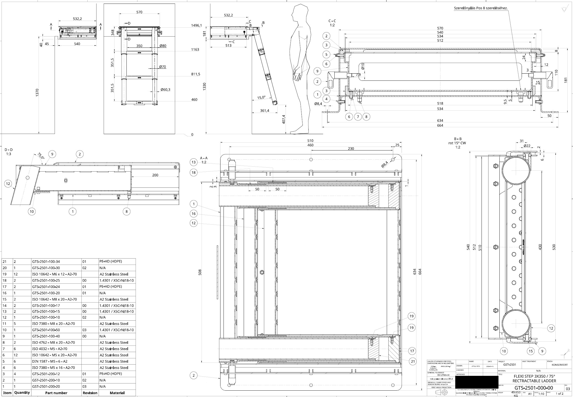
Task
Serial production of telescopic step designed for towing trucks.
Solution
Concept development in close cooperation with the towing truck manufacturer. Prototype building in 2 cycles. Approved design went into serial production.
New step is sturdier, wider and longer than previous one.
